Verkocht:Jacob van Ruysdaelstraat 16, 4507 CC Schoondijke - Foto
Verkocht
+48

Jacob van Ruysdaelstraat 16 4507 CC Schoondijke

  • Woonhuis
  • 6 kamers
  • 4 slaapkamers
  • 1 badkamer
  • Bouwjaar 1976
  • 210 m² perceeloppervlakte
  • 141 m² gebruiksoppervlakte
  • A Energielabel A
Ruime, instapklare gezinswoning met uitbouw, moderne keuken en zonnige tuin.

Beschrijving

Dit verrassend ruime en keurig onderhouden huis is instapklaar en werd vanaf 2009 op meerdere punten vernieuwd en uitgebouwd. De aanbouw van de keuken en de uitbouw van de woonkamer zorgen samen voor een prachtige leefruimte met veel licht en een fijne open sfeer.

Perceelgrootte: 210m².
Bouwjaar: ca. 1976 gerenoveerd vanaf 2009
Energielabel: A
4 Slaapkamers.

De woning is gelegen in een rustige woonwijk in het gemoedelijke Schoondijke. Een centrale plek in Zeeuws-Vlaanderen, tussen Breskens met haar levendige kust en Oostburg met alle dagelijkse voorzieningen. Rondom het dorp vind je volop natuur, ruimte en de kenmerkende Zeeuwse rust. Een heerlijke uitvalsbasis voor wie comfortabel wil wonen met alles binnen handbereik.

Indeling

Via de verzorgde voortuin kom je binnen in de hal met toilet en vernieuwde meterkast. Hier voel je meteen de nette afwerking die in de hele woning terugkomt.
De woonkamer is ruim en sfeervol met brede houten vloerdelen en een moderne schouw die een gezellig middelpunt vormt in de ruimte.
Door de uitbouw aan de achterzijde is een prachtige open leefruimte ontstaan. Het daglicht valt rijkelijk naar binnen en de grote schuifpui zorgt voor een directe verbinding met de tuin.
De woonkeuken vormt samen met de eetruimte een gezellige plek, die voorzien is van een kookeiland en diverse moderne inbouwapparatuur, waaronder een Quooker. De afzuiging is zelfs met een afstandsbediening te bedienen.
Aansluitend bevindt zich de praktische bijkeuken met aansluitingen voor wasmachine en droger en extra werkruimte.
Vanuit de woning is de inpandige garage bereikbaar met sectionaaldeur.

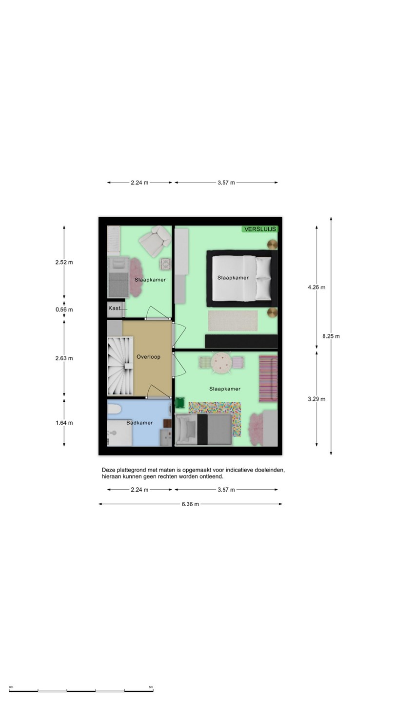
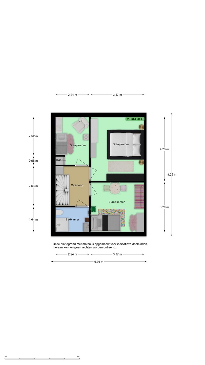
Eerste verdieping

Op de eerste verdieping kom je op een ruime overloop met praktische kast.
Hier bevinden zich drie slaapkamers, allen netjes afgewerkt met een laminaatvloer. De grootste slaapkamer ligt aan de achterzijde en biedt een prettig uitzicht. De overige kamers zijn ideaal als kinder-, werk- of logeerkamer.
De badkamer is modern ingericht en beschikt over een recent vernieuwde douche, een wastafelmeubel en een tweede toilet.

Tweede verdieping

Via een vaste trap bereik je de tweede verdieping.
Hier bevindt zich de vierde slaapkamer met een dakvenster en elektrisch rolluik. De ruimte is netjes afgewerkt met een laminaatvloer en dankzij de dakisolatie comfortabel in gebruik.

Tuin

De achtertuin ligt gunstig op het zuidwesten en is netjes en verzorgd aangelegd. Dankzij de gunstige ligging geniet je hier volop van de middag- en avondzon.
Het overdekte terras maakt het mogelijk om ook op minder warme dagen heerlijk buiten te zitten. Achterin de tuin staat een praktisch tuinhuis dat extra bergruimte biedt.
Doordat er geen directe achterburen zijn, ervaar je hier een prettig gevoel van rust en privacy.

Bijzonderheden

De woning is voorzien van deels kunststof kozijnen met dubbel glas en deels voorzien van hardhouten kozijnen met HR++ glas.
Op de verdieping zijn elektrische rolluiken aanwezig.
De verwarming en warmwater worden verzorgd door een HR-combiketel van het merk Nefit uit 2025.
De meterkast is vernieuwd en voorzien van 10 groepen en krachtstroom.
De spouwmuren zijn geïsoleerd in 2017 en ook het dak is geïsoleerd.
Op het dak liggen 12 zonnepanelen met een opbrengst van circa 3600 kWh.

Het achterste deel van de tuin (26 m²) is eigendom van de gemeente Sluis. Dit kan gehuurd worden voor, € 98,- per jaar.
De koper van dit huis kan deze strook grond ook kopen van de gemeente. De prijs hiervoor bedraagt € 1.950,- k.k.

Wij hebben een brochure van deze woning met duidelijke plattegronden met inrichting. Met 1 druk op de knop is deze te downloaden.
Ook is er nog een videofilm. Zelfs 360 gradenfoto’s en een virtuele tour behoren tot de promotie.
Wil je na dit alles bekeken te hebben meer informatie of een bezichtiging? De dames van Team Versluijs zijn er klaar voor.

Kaart

Kenmerken

Overdracht

Vraagprijs
€ 389.000,- k.k.
Status
Verkocht
Aanvaarding
In overleg

Bouw

Type object
Woonhuis, eengezinswoning, twee onder een kap woning
Soort bouw
Bestaande bouw
Bouwperiode
1976
Dakbedekking
Dakpannen
Type dak
Zadeldak
Isolatievormen
Dakisolatie
Dubbel glas
HR-glas
Muurisolatie
Spouwmuren

Oppervlaktes en inhoud

Perceeloppervlakte
210 m²
Woonoppervlakte
141 m²
Inhoud
559 m³
Oppervlakte overige inpandige ruimten
17 m²
Oppervlakte externe bergruimte
8 m²

Indeling

Aantal bouwlagen
3
Aantal kamers
6 (waarvan 4 slaapkamers)
Aantal badkamers
1 (en 1 apart toilet)

Locatie

Ligging
Aan rustige weg
In woonwijk

Tuin

Type
Achtertuin
Hoofdtuin
Ja
Oriëntering
Zuid-west
Staat
Normaal
Tuin 2 - Type
Voortuin
Tuin 2 - Oriëntering
Noord-oost
Tuin 2 - Staat
Normaal

Energieverbruik

Energielabel
A

CV ketel

CV ketel
Nefit
Warmtebron
Gas
Bouwjaar
2025
Combiketel
Ja
Eigendom
Eigendom

Uitrusting

Aantal parkeerplaatsen
2
Aantal overdekte parkeerplaatsen
1
Warm water
CV-ketel
Verwarmingssysteem
Centrale verwarming
Gashaard
Ventilatie methode
Mechanische ventilatie
Natuurlijke ventilatie
Keukenvoorzieningen
Inbouwapparatuur
Kookeiland
Badkamervoorzieningen
Douche
Toilet
Wastafelmeubel
Parkeergelegenheid
Inpandige garage
Tuin aanwezig
Ja
Heeft een garage
Ja
Beschikt over een internetverbinding
Ja
Heeft rolluiken
Ja
Heeft een dakraam
Ja
Heeft een schuifpui
Ja
Heeft zonnepanelen
Ja
Heeft ventilatie
Ja

Kadastrale gegevens

Kadastrale aanduiding
Oostburg ES 990
Perceeloppervlakte
210 m²
Omvang
Geheel perceel
Eigendomsituatie
Eigen grond

Media

Video

Virtuele tour

Plattegronden

Brochure(s) en overige bijlagen

Schoondijke J. van Ruysdaelstraat 16 BR.pdf Download

Jouw laatste Ontdekkingen

Recent bekeken

Bekijk ons volledige aanbod
Gratis account

Gratis account

Wil je je favoriete woningen opslaan en op de hoogte blijven van hun status? Een account hebben is de sleutel! Registreer nu en ontdek het gemak van een gepersonaliseerde woning ervaring.

Account aanmaken