Prijsverlaging:Van der Slikkestraat 5, 4507 AC Schoondijke - Foto
Prijsverlaging
+44

Van der Slikkestraat 5 4507 AC Schoondijke € 309.000,- k.k.

  • Woonhuis
  • 4 kamers
  • 3 slaapkamers
  • 1 badkamers
  • Bouwjaar 1947
  • 387 m² perceeloppervlakte
  • 100 m² gebruiksoppervlakte
  • D Energielabel D
Instapklare woning met diepe tuin, luxe overdekt terras en eigen parkeerruimte

Beschrijving

Achter de charmante gevel van dit huis uit 1947 schuilt een verrassend moderne en lichte leefruimte. Door de grondige renovatie in 2015 is dit huis helemaal van nu, maar met behoud van karakter. Instapklaar en keurig onderhouden, zodat je direct kunt verhuizen zonder extra werk.

Perceelgrootte: 387m².
Bouwjaar: ca. 1947, gemoderniseerd in 2015
Energielabel: D
3 Slaapkamers.

Gelegen in een rustige, kindvriendelijke straat in het dorp Schoondijke woon je hier landelijk en toch centraal.
Bovendien ben je binnen een mum van tijd in Breskens, Oostburg, IJzendijke of op het strand. Ideaal voor wie houdt van rust én een goede bereikbaarheid.

Indeling

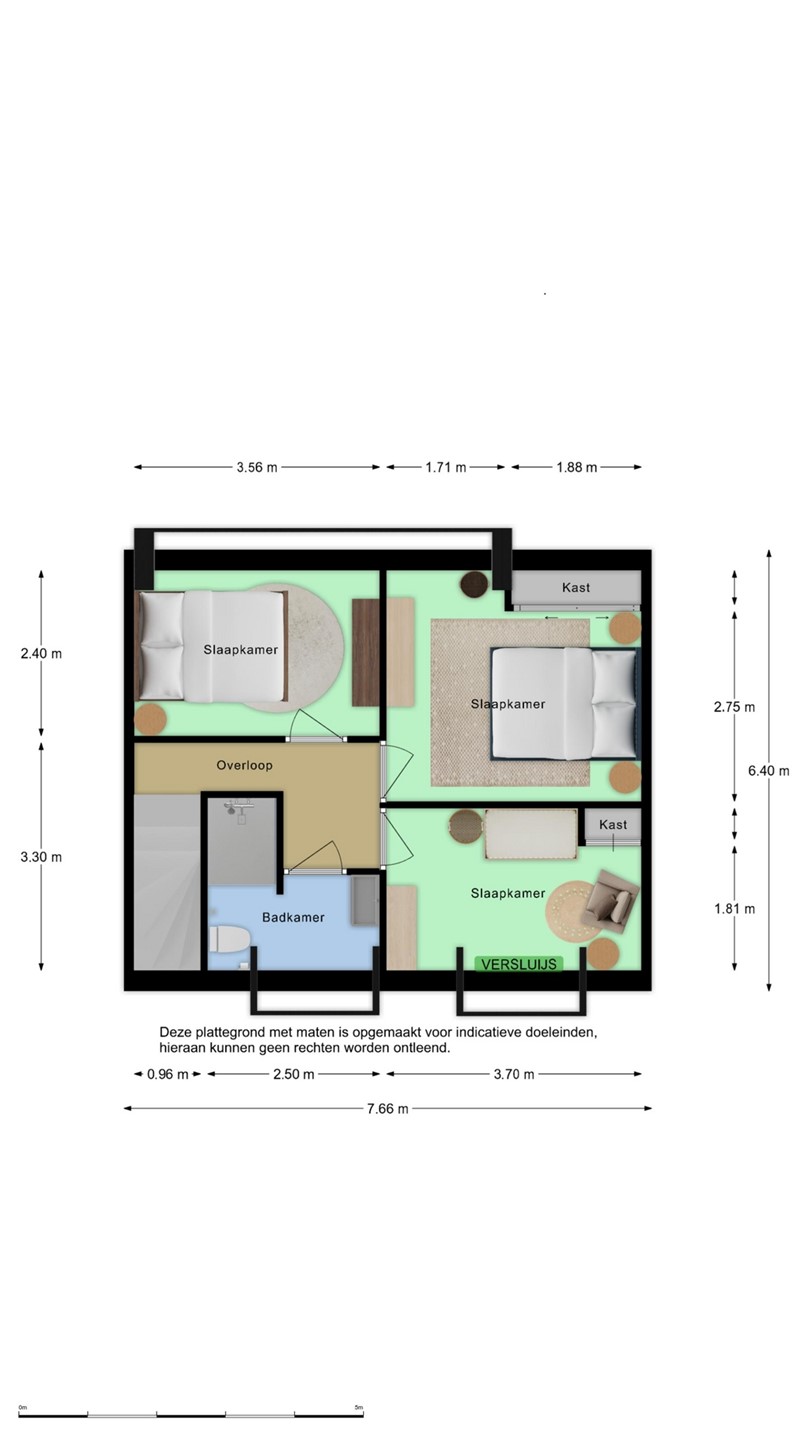
Je komt binnen via de hal met aldaar de meterkast, het toilet, een trapkast en de trap naar de verdieping.
De lichte, L-vormige, woonkamer zorgt voor een ruime gezellige leefruimte waar je heerlijk kunt relaxen bij de open haard. Dankzij de laminaatvloer is alles mooi strak en onderhoudsvriendelijk.
Aan de achterkant vind je een half-open keuken die is uitgerust met alle benodigde, moderne apparatuur. Aangrenzend vind je de bijkeuken. Deze biedt niet alleen plaats aan de cv ketel, de wasmachine en een droger, maar heeft ook nog een handige bergzolder.

Eerste verdieping

Via de trap in de hal kom je op de overloop. Hier wachten 3 fijne slaapkamers, allemaal keurig afgewerkt en voorzien van extra brede dakkapellen die zorgen voor extra ruimte en licht.
De laminaatvloer loopt hier mooi door wat zorgt voor een rustige en moderne uitstraling.
De badkamer, vernieuwd in 2015, is uitgerust met een douchecabine, een wastafelmeubel, het 2e toilet en een royale dakkapel.

Tweede verdieping

Bergzolder met een stahoogte van 1.70m. Deze zolder is op dit moment niet in gebruik, daar de bijkeuken een handige bergzolder heeft.

Tuin

De achtertuin en de bijbehorende gebouwen hebben in 2021 een metamorfose ondergaan.
De diepe achtertuin is hierdoor één van de grote verrassingen van dit huis.
Hier geniet je van rust, privacy en groen. Dankzij het zeer sfeervol en luxe massief houten overdekte terras zit je zelfs bij minder mooi weer heerlijk buiten. Hier ga je vele uren van genieten.
En met de appelboompjes in je eigen tuin pluk je letterlijk de vruchten van het buitenleven.
Achter in de tuin staat een vrijstaande berging annex garage, ideaal voor de klusser of de auto. De garage is voorzien van stroom en licht.
Achter de garage liggen nog 2 privé parkeerplaatsen, dus parkeren is nooit een probleem.

Bijzonderheden

De spouwmuren zijn geïsoleerd.
Volledig voorzien van hardhouten kozijnen met dubbel glas.
Ook zijn er diverse rolluiken en raamhorren.
Een hr-combiketel van het merk Intergas uit 2025 voorziet in de verwarming en het warm water.
De vernieuwde meterkast is uitgerust met 5 groepen en 2 aardlekschakelaars.
Er ligt glasvezel van Glasdraad in de woning.

Profiteer van het Zeeuwse Isolatie Programma van de Gemeente Sluis! Met deze subsidie kun je tot wel € 2.050,- ontvangen voor isolerende maatregelen, zelfs als je ze zelf uitvoert. En ja, dit geldt ook voor deze woning. Een geweldige kans om slim te investeren in jouw nieuwe thuis. Plan vandaag nog een bezichtiging en ontvang alle details over het Isolatie Programma van de makelaar!

Starterslening in de gemeente Sluis
Heb jij een eerste woning op het oog, maar is je inkomen te laag voor een hypotheek?
Om het kopen van een eerste huis mogelijk te maken, kun je de Starterslening
aanvragen.

Er zijn diverse subsidiemogelijkheden voor isolatiewerkzaamheden beschikbaar, niet alleen vanuit gemeenten, maar soms ook op provinciaal en landelijk niveau. Deze regelingen kunnen oplopen tot duizenden euro’s en gelden soms ook als je de werkzaamheden zelf uitvoert. En ja, dit geldt ook voor deze woning. Een geweldige kans om slim te investeren in jouw nieuwe thuis. Plan vandaag nog een bezichtiging en ontvang meer informatie over de beschikbare isolatiesubsidies in jouw regio!

Wij hebben een brochure van deze woning met duidelijke plattegronden met inrichting. Met 1 druk op de knop is deze te downloaden.
Ook is er nog een videofilm. Zelfs 360 gradenfoto’s en een virtuele tour behoren tot de promotie.
Wil je na dit alles bekeken te hebben meer informatie of een bezichtiging? De dames van Team Versluijs zijn er klaar voor.

Kaart

Kenmerken

Overdracht

Vraagprijs
€ 309.000,- k.k.
Status
Prijsverlaging
Aanvaarding
Direct

Bouw

Type object
Woonhuis, eengezinswoning, tussenwoning
Soort bouw
Bestaande bouw
Bouwperiode
1947
Dakbedekking
Dakpannen
Type dak
Zadeldak
Isolatievormen
Dubbel glas
Muurisolatie
Spouwmuren

Oppervlaktes en inhoud

Perceeloppervlakte
387 m²
Woonoppervlakte
100 m²
Inhoud
327 m³
Oppervlakte externe bergruimte
13 m²

Indeling

Aantal bouwlagen
3
Aantal kamers
4 (waarvan 3 slaapkamers)
Aantal badkamers
1 (en 1 apart toilet)

Locatie

Ligging
Aan rustige weg
In woonwijk

Tuin

Type
Achtertuin
Hoofdtuin
Ja
Oriëntering
Noord-oost
Staat
Normaal

Energieverbruik

Energielabel
D

CV ketel

CV ketel
Intergas
Warmtebron
Gas
Bouwjaar
2025
Combiketel
Ja
Eigendom
Eigendom

Uitrusting

Aantal parkeerplaatsen
3
Aantal overdekte parkeerplaatsen
1
Warm water
CV-ketel
Verwarmingssysteem
Centrale verwarming
Open haard
Ventilatie methode
Natuurlijke ventilatie
Keukenvoorzieningen
Inbouwapparatuur
Badkamervoorzieningen
Douche
Toilet
Wastafelmeubel
Parkeergelegenheid
Vrijstaande houten garage
Heeft kabel-tv
Ja
Heeft een open haard
Ja
Heeft een rookkanaal
Ja
Glasvezelaansluiting aanwezig
Ja
Tuin aanwezig
Ja
Heeft een garage
Ja
Telefoonaansluiting aanwezig
Ja
Beschikt over een internetverbinding
Ja
Heeft rolluiken
Ja

Kadastrale gegevens

Kadastrale aanduiding
Oostburg ES 68
Perceeloppervlakte
387 m²
Omvang
Geheel perceel
Eigendomsituatie
Eigen grond

Media

Video

Virtuele tour

Plattegronden

Brochure(s) en overige bijlagen

Schoondijke van der Slikkestraat 5 BR.pdf Download

Jouw laatste Ontdekkingen

Recent bekeken

Bekijk ons volledige aanbod
Gratis account

Gratis account

Wil je je favoriete woningen opslaan en op de hoogte blijven van hun status? Een account hebben is de sleutel! Registreer nu en ontdek het gemak van een gepersonaliseerde woning ervaring.

Account aanmaken