Nieuw in verkoop:Hugevlietstraat 12, 4521 AV Biervliet - Foto
Nieuw in verkoop
+49

Hugevlietstraat 12 4521 AV Biervliet € 489.000,- k.k.

  • Woonhuis
  • 6 kamers
  • 5 slaapkamers
  • 2 badkamers
  • Bouwjaar 1979
  • 546 m² perceeloppervlakte
  • 164 m² gebruiksoppervlakte
  • C Energielabel C
Heerlijke leefruimtes, slimme indeling en maar liefst 5 slaapkamers

Beschrijving

Ben je op zoek naar een huis met volop leefruimte en privacy? Naar een plek waar wonen en werken hand in hand kunnen gaan zonder concessies te doen aan comfort?
Een plek waar je voorbereid bent op de toekomst omdat je er volledig gelijkvloers kan wonen?
Zet dan dit vrijstaande en goed onderhouden huis bovenaan je lijst.

Perceelgrootte: 546m².
Bouwjaar: ca. 1979
Energielabel: C
5 Slaapkamers.

Hier woon je prettig en energiezuinig dankzij de degelijke isolatie en overal dubbel glas. De indeling is praktisch, alle vertrekken zijn royaal van formaat en functioneel opgezet. Kortom, een huis met nét dat beetje extra en… het is klaar voor een nieuw hoofdstuk. Kom jij het schrijven?

Indeling

Je komt binnen in de nette, ruime hal met meterkast, toilet en de trap naar de 1e etage.
De royale slaapkamer op de begane grond is voorzien van airconditioning en heeft toegang naar een eigen privé badkamer met bad-douche combinatie, een wastafelmeubel, handdoekradiator en een infrarood paneel. Elektrische verwarming zorgt voor aangename (bij)verwarming.
De woonkamer en de keuken zijn voorzien van een moderne pvc vloer, een gezellige houtkachel en openslaande tuindeuren naar het terras. De balken in het plafond zijn decoratief en geven extra karakter aan de ruimte.
De open keuken is voorzien van alle benodigde apparatuur, inclusief heet water kraan. Het aanrecht blad in de inbouwapparatuur zijn vernieuwd in 2023. Aansluitend vind je de praktische bijkeuken met aansluitingen voor de wasmachine en de droger.

Vanuit de bijkeuken heb je toegang tot de lange, brede garage met elektrische sectionaldeur en een grondwaterpomp.
Hier is volop ruimte voor een auto, fietsen, gereedschap enz.

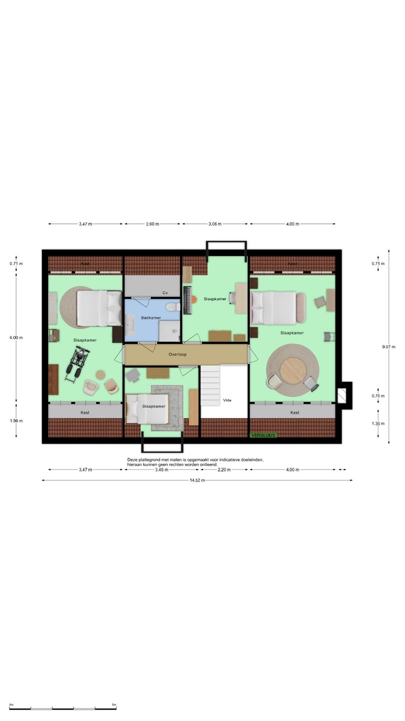
Eerste verdieping

Via de overloop met vide bereik je 4 ruime slaapkamers, waarvan er 2 met een dakkapel zijn uitgerust.
3 Slaapkamers zijn voorzien van laminaat vloer en één met een kurkvloer.
Twee slaapkamers beschikken over een kastenwand met erachter handige, extra bergruimte.
De badkamer op deze verdieping is eenvoudig, maar compleet met douche, wastafel en een 2e toilet. Aansluitend aan de badkamer is er een extra berging waar zich de cv ketel bevindt.

Tweede verdieping

Via een luik in één van de slaapkamers is de zolder bereikbaar met een vlizotrap. De zolder strekt zich uit over de hele woning.

Tuin

De tuin met zonneterras is fraai aangelegd, heerlijk beschut en biedt veel privacy; je hebt nauwelijks zicht op andere huizen.
Er is een achterpoort, een mooi tuinhuis voorzien van elektra en een hout hok.
Ook de voortuin is netjes verzorgd en zorgt voor een prettige eerste indruk.
Daarnaast is er ook nog een carport én voldoende parkeergelegenheid op eigen terrein.

Bijzonderheden

Volledig voorzien van hard houten kozijnen met dubbel glas.
Het kozijn aan de voorzijde van de woonkamer is van hout met HR++ glas.
Overal zijn rolluiken.
Een hr combiketel uit 2022 van het merk Intergas voorziet in de verwarming en het warm water.
De moderne meterkast is uitgerust met 10 groepen en 3 aardlekschakelaars.
Het huis is volledig geïsoleerd.
De woonkamer en de slaapkamer op de begane grond zijn voorzien van airconditioning.
Dakkapel achterzijde is geplaatst in 2017.
De fundering van het huis is geheid op 32 palen.
In 2022 zijn er 12 zonnepanelen gelegd.

Wij hebben een brochure van deze woning met duidelijke plattegronden met inrichting. Met 1 druk op de knop is deze te downloaden.
Ook is er nog een videofilm. Zelfs 360 gradenfoto’s en een virtuele tour behoren tot de promotie.
Wil je na dit alles bekeken te hebben meer informatie of een bezichtiging? De dames van Team Versluijs zijn er klaar voor.

Kaart

Kenmerken

Overdracht

Vraagprijs
€ 489.000,- k.k.
Status
Nieuw in verkoop
Aanvaarding
In overleg

Bouw

Type object
Woonhuis, bungalow, vrijstaande woning, semibungalow
Soort bouw
Bestaande bouw
Bouwperiode
1979
Dakbedekking
Dakpannen
Type dak
Zadeldak
Isolatievormen
Dakisolatie
Dubbel glas
HR-glas
Muurisolatie
Volledig geïsoleerd

Oppervlaktes en inhoud

Perceeloppervlakte
546 m²
Woonoppervlakte
164 m²
Inhoud
674 m³
Oppervlakte overige inpandige ruimten
29 m²
Oppervlakte externe bergruimte
11 m²
Oppervlakte gebouwgebonden buitenruimte
40 m²

Indeling

Aantal bouwlagen
3
Aantal kamers
6 (waarvan 5 slaapkamers)
Aantal badkamers
2 (en 1 apart toilet)

Locatie

Ligging
Aan rustige weg
In woonwijk

Tuin

Type
Achtertuin
Hoofdtuin
Ja
Oriëntering
Oosten
Heeft een achterom
Ja
Staat
Normaal
Tuin 2 - Type
Voortuin
Tuin 2 - Oriëntering
West
Tuin 2 - Staat
Normaal

Energieverbruik

Energielabel
C

CV ketel

CV ketel
Intergas
Warmtebron
Gas
Bouwjaar
2022
Combiketel
Ja
Eigendom
Eigendom

Uitrusting

Aantal parkeerplaatsen
3
Aantal overdekte parkeerplaatsen
1
Warm water
CV-ketel
Verwarmingssysteem
Centrale verwarming
Houtkachel
Ventilatie methode
Natuurlijke ventilatie
Badkamervoorzieningen Badkamer 1
Ligbad
Wastafelmeubel
Badkamervoorzieningen Badkamer 2
Douche
Toilet
Wastafelmeubel
Parkeergelegenheid
Inpandige garage
Heeft airco
Ja
Heeft kabel-tv
Ja
Heeft een rookkanaal
Ja
Tuin aanwezig
Ja
Heeft een garage
Ja
Telefoonaansluiting aanwezig
Ja
Beschikt over een internetverbinding
Ja
Heeft rolluiken
Ja
Heeft schuur/berging
Ja
Heeft een dakraam
Ja
Heeft zonnepanelen
Ja

Kadastrale gegevens

Kadastrale aanduiding
Terneuzen BC 905
Perceeloppervlakte
546 m²
Omvang
Geheel perceel
Eigendomsituatie
Eigen grond

Media

Video

Virtuele tour

Plattegronden

Brochure(s) en overige bijlagen

Biervliet Hugevlietstraat 12 BR.pdf Download

Jouw laatste Ontdekkingen

Recent bekeken

Bekijk ons volledige aanbod
Gratis account

Gratis account

Wil je je favoriete woningen opslaan en op de hoogte blijven van hun status? Een account hebben is de sleutel! Registreer nu en ontdek het gemak van een gepersonaliseerde woning ervaring.

Account aanmaken